Project Experience

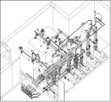
3D Coordinated Drawing of Mechanical Room

 

Kirk Middle School
East Cleveland, Ohio

Pardo Consultants did the 3D coordination for the HVAC and Plumbing trade contractors and coordinated with the General Contractor, Fire protection, and Electrical Contractor. The spool drawings were made with a field accuracy of 1/64 of an inch. These types of drawings save conflict and excessive labor during the installation of the HVAC, Plumbing, Fire Protection and Electrical systems. The result of this is the overall cost reduction for the client in the MEP trades. Pardo Consultants had four phases starting with coordination with all trades, shop drawing approval, fabrication and as-built drawings.

 

 

A. N. McGregor Home
Amasa Stone House
East Cleveland, Ohio

This is a 3D drawing that is shown as a wire mesh of the boiler room and the heating hot water distribution system. The spool pieces were produced and multiple sections showing detail fabrication drawings were created. This drawing during its development was coordinated with the Plumbing, Fire protection and Electrical trades during the construction in a fast track schedule. Pardo Consultants did the coordination for the HVAC and Plumbing for all mechanical rooms and floor layouts for the two lower levels.

 

 

 

 

3D Wire Mesh Drawing of Mechanical Room